| 価格 | 2,680万円 ![]() |
||||
|---|---|---|---|---|---|
| 所在地 | 埼玉県久喜市青毛3丁目
この地域周辺の物件を見る |
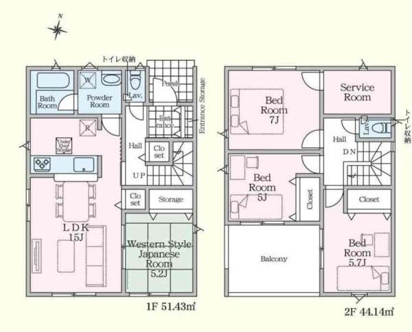
土地面積 | 149.21m² (45.14坪) | 建物面積 | 95.57u |
| 築年月 | 2026年4月築 | 間取り | 4SLDK (LDK15/和室5.2/洋室7/洋室5.7/洋室5) | ||
| 交通 |
東武日光線 幸手 徒歩18分
JR東北本線 久喜 徒歩33分 東武伊勢崎線 久喜 徒歩33分 |
||||
電話をかける(携帯・PHS可)
0120-21-3781
「ホームページを見た」とお伝え下さい。
お問い合わせ番号をお伝えください
RHS-092801-26110
| 特徴 |
|
|---|---|
| セールスコメント | 【物件特徴】 ■東武日光線『幸手』駅徒歩18分 ■クローゼット ■バルコニー |
| 採光面 | 南 | 構造/階数 | 木造/地上2階建 |
|---|---|---|---|
| 建ぺい率 | 50(%) | 容積率 | 100(%) |
| 駐車場 | 有 | 現況/引渡し | 建築中/相談 |
| 土地権利 | 所有権 | 私道負担面積 | - |
| 接道状況 | 接道: 北 公道 道路幅: 5.98m | 用途地域 |
第一種低層住居専用地域
|
| セットバック | - | 法令上の制限 | 景観法 |
| 地目 | 宅地 | 地勢 | |
| 建築確認番号 | 第KBI-SGM25-10-4862号 | 都市計画 | 市街化区域 |
| 取引態様 | 仲介 | ||
| 情報更新日 | 2026年03月11日 | 次回更新日 | 2026年03月25日 |
| 小学校区 | 久喜市立青毛小学校 (埼玉県久喜市) この学区の他の物件を見る |
中学校区 | 久喜東中学校 (埼玉県久喜市) この学区の他の物件を見る |
|---|
電話をかける(携帯・PHS可)
0120-21-3781
「ホームページを見た」とお伝え下さい。
お問い合わせ番号をお伝えください
RHS-092801-26110
| 価格 | 万円 | ||
|---|---|---|---|
| 年利率 | % |
||
| ボーナス払い | 返済年数 | ||
| 頭金 | 直接入力する | 万円 | |

毎月のご返済額 |
ボーナス(×年2回) |
物件価格2,680万円 |

![]() |
![]() |
久喜市青毛3丁目
2680万円 |
電話をかける(携帯・PHS可)
0120-21-3781
「ホームページを見た」とお伝え下さい。
お問い合わせ番号をお伝えください
RHS-092801-26110
【物件特徴】
■東武日光線『幸手』駅徒歩18分
■クローゼット
■バルコニー